Property Overview
Mill Road
Burgess Hill ,RH15

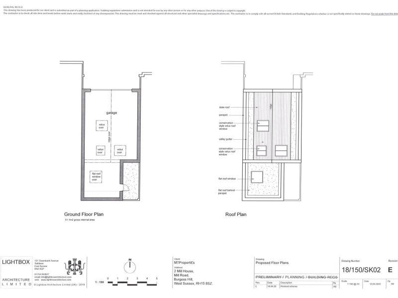
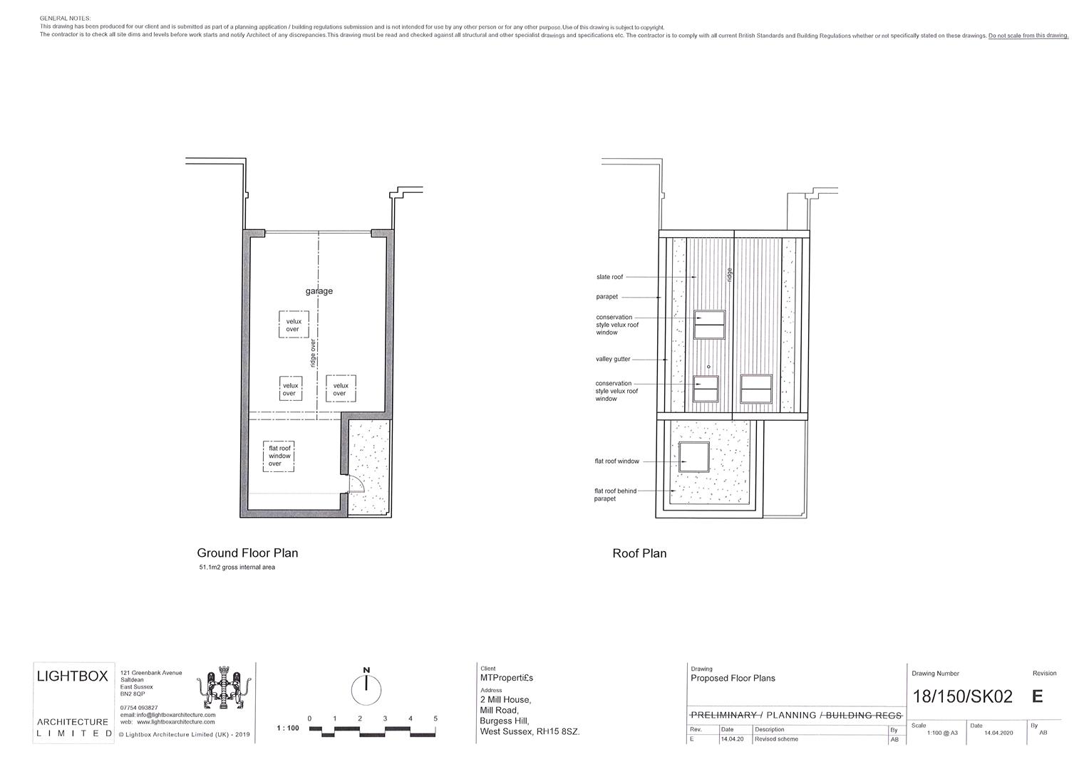
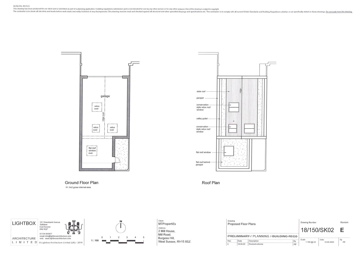
Floorplan
Features
- PLANNING PERMISSION GRANTED FOR SINGLE STOREY STRUCTURE
- Planning Application Ref: DM/20/1382
- Exclusive to Hunters Land & New Homes
- Further scope to turn into Residential Use (STPP)
- Close proximity to Burgess Hill Town Centre
- A stone’s-throw from a mainline Train Station with links to London & the South-Coast
- Private no-through road
- Prime, central location
Book A Viewing
Description
Planning Permission Granted
Hunters Land & New Homes are pleased to offer a unique opportunity to acquire a plot of land with planning permission for a single storey replacement garage, with possible future scope to develop into a residential dwelling.
Hunters Land & New Homes are please to exclusively bring to the open market a centrally located site in Burgess Hill Town Centre, with planning permission for a single storey garage. The site provides a unique opportunity to acquire this parcel of land to develop, with further scope to change into a residential property (subject to the relevant planning permissions being granted).
Planning Application Ref: DM/20/1382
Demolition of existing structure and erection of a single storey replacement garage.
Conveniently situated down a private no-through road, adjoining Mill Road, this plot is within a stone’s throw of Burgess Hill Town Centre with it’s Cafe’s, Restaurants, Hairdressers/Barbers, Retail Shops, Pubs & Waitrose Supermarket. Up the road is Burgess Hill’s mainline train station, with direct access to London, Brighton & the South-Coast. Burgess Hill, itself, is expanding in coming years with the addition of 3,500 news homes on the Northern Arc development, meaning central locations such as this, will come at a premium for residential use.
























