Property Overview
Royal George Road
Burgess Hill ,RH15

Features
- 5 Bedroom Detached House
- Driveway parking for two cars
- Converted garage with office space
- Self-contained annexe accommodation
- Wood-burning fireplace
- South-facing private rear garden
- Allotment area with greenhouse
- Walking distance to local schools
- Excellent A23 transport links
- Council tax band E
Book A Viewing
Description
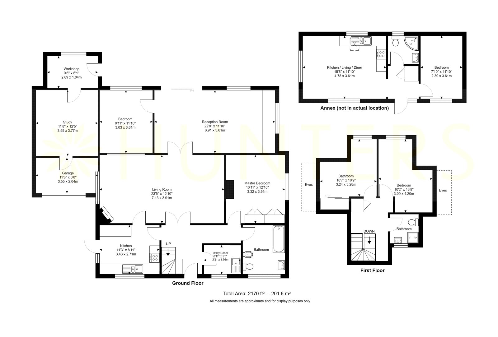
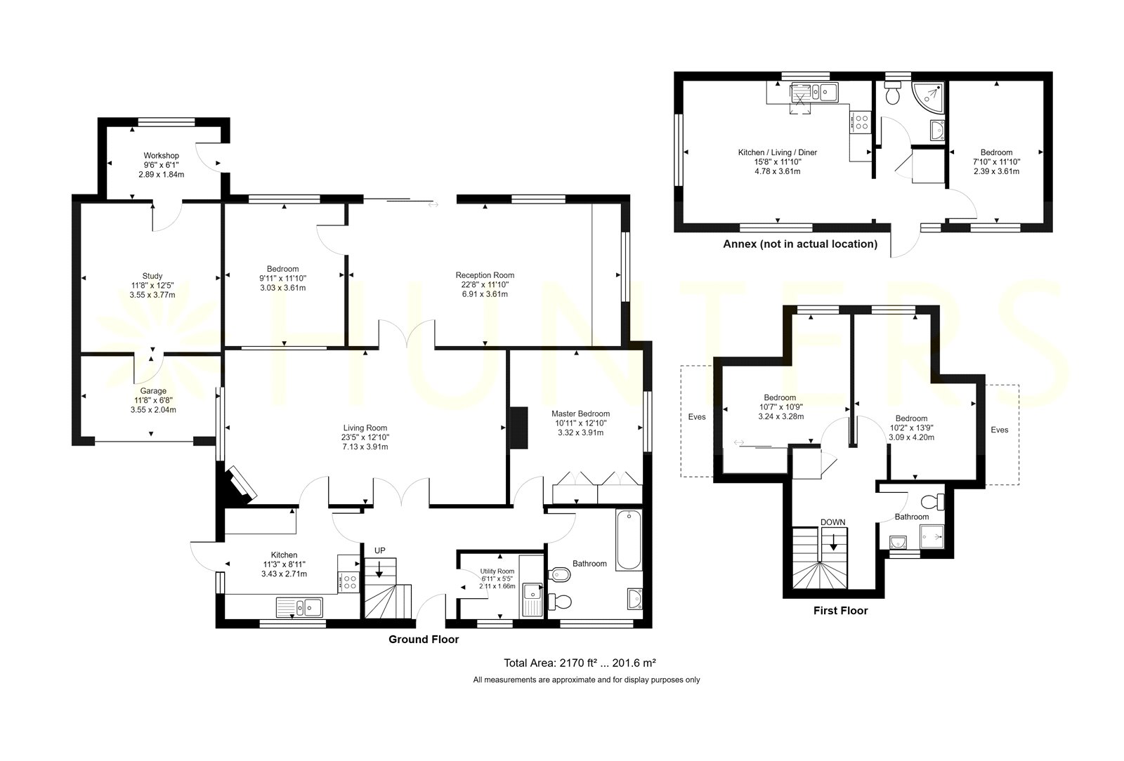
A spacious and highly versatile four-bedroom detached home with a self-contained annexe and a beautifully maintained south-facing garden. Located on the popular Royal George Road, the property offers flexible living space including a generous open-plan living/dining room with fireplaces, a well-appointed kitchen, and a converted garage providing studio and workshop space. The detached annexe offers ideal accommodation for guests, multi-generational living or potential rental income. Conveniently positioned close to local schools, the Triangle Leisure Centre, Burgess Hill town centre and excellent transport links to Brighton and London.
To the front of the property there is a private driveway providing off-road parking for up to two cars, as well as additional on-street parking nearby. There is also access to the garage and side access to the property.
Upon entering, stairs rise to the first floor with useful storage beneath, and the hallway benefits from original oak flooring. To your right is the utility room, which has plumbing for a washing machine, a sink, and further storage space. The kitchen is fitted with neutral shaker-style units and wooden worktops, with built-in appliances including an induction hob, oven, and microwave. There is also space for a fridge/freezer and dishwasher.
The open-plan living/dining room features both an open wood-burning fireplace and a gas fire, ideal for the colder months. This room offers plenty of space for freestanding furniture. Through double doors is an additional reception room with a large, bright window to the rear and a substantial built-in storage cupboard. From here, there is access to the fourth bedroom, making it an ideal guest suite or versatile study space. To the rear of the property, there are stunning views over the garden.
The master bedroom is located on the ground floor and benefits from built-in wardrobes. The family bathroom is finished with neutral stone-tiled walls and comprises an overhead shower, bath, toilet, sink, and bidet.
On the first floor, there are two bedrooms, both offering space for freestanding furniture along with ample eaves storage. The south-facing bedroom enjoys a bright and airy feel. There is also a second bathroom on this floor, fitted with a walk-in shower, toilet, and sink. A storage cupboard on the landing houses the boiler.
To the side of the house is a garage which has been thoughtfully converted. The front section remains as useful storage space, while the middle section is fitted with lighting and electricity, making it ideal for a home office or study area. This studio space is also fully soundproofed. To the rear, there is a workshop space which leads directly out to the garden.
From the garden, there is access to the annexe. This features an open-plan living/kitchen/dining area fitted with an electric hob, oven, and microwave, along with ample over- and under-counter storage and an under-counter fridge. The annexe also benefits from air conditioning and cabling for TV and Wi-Fi. Triple-aspect windows flood the space with natural light. The bathroom includes a walk-in shower, toilet, and sink. The bedroom is a spacious double with room for freestanding furniture, and there is an additional storage cupboard in the hallway.
The impressive south-facing garden offers ample space to enjoy the outdoors all year round. Mature shrubs and bushes border the garden, providing excellent privacy, and there are various seating areas perfect for the warmer months. Towards the end of the garden is an allotment-style area with a variety of fruits and vegetables. There is also a greenhouse, shed, and potting house, which is fitted with lighting and electricity.
Situated on the popular Royal George Road, this property offers easy access to the Triangle Leisure Centre, where you can enjoy a range of amenities including swimming, hockey, climbing, and other sporting activities. Direct access to the A23 provides convenient links to both Brighton and London. Burgess Hill town centre is just a short journey away, offering a variety of local shops, pubs, restaurants, and a popular cinema. Within walking distance are well-regarded schools including St Paul Catholic College, The Burgess Hill Academy, Little Explorers Nursery, and The Gattons Primary School.




































































