Property Overview
Mansion Close
Burgess Hill ,RH15

Features
- NO ONWARD CHAIN
- Three bedroom detached House
- Popular and convenient family-friendly location
- Short walk to shops and station
- Tandem driveway parking for three cars
- Bright dual-aspect main living/dining room
- Attractive bay-fronted window feature
- Spacious kitchen with pantry storage
- Large Rear Garden
- Council tax band E
Book A Viewing
Description
NO ONWARD CHAIN
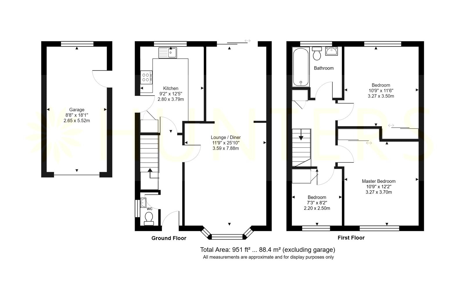
Offered to the market with no onward chain, Hunters are pleased to present this well-presented three-bedroom detached home. The property features a tandem driveway for up to three vehicles, garage, bright dual-aspect living room with garden access, fitted kitchen, three well-proportioned bedrooms and a family bathroom. Externally, the home boasts a generous rear garden with patio seating area, ideal for entertaining, and falls within the catchment for Birchwood Grove and Oak Tree Primary Schools.
NO ONWARD CHAIN
Hunters are pleased to offer to the market this well-presented three-bedroom detached home, situated in the popular Mansion Close. This style of property continues to appeal to both families and couples, thanks to its practical layout and convenient location.
The nearby Kings Weald Estate provides a real community feel, with a community centre, Co-Operative store and surrounding nature reserves, ideal for dog walking and countryside walks. Both Wivelsfield and Burgess Hill Train Stations are within around a 10-minute walk, each offering a range of local amenities including takeaways, hairdressers, convenience stores, a post office and beauticians. The property also falls within the catchment area for Birchwood Grove and Oak Tree Primary Schools.
To the front, the property benefits from a tandem driveway providing parking for up to three vehicles, as well as additional on-street parking. The front garden is mainly laid to lawn and provides access to the garage, along with gated side access leading to the rear garden and kitchen.
The property is entered via a spacious entrance hallway with stairs to the first floor and useful under-stairs storage space. A downstairs WC is located to the left, with doors leading to the living room and kitchen. The living room is a bright, dual-aspect space with a large bay window to the front and sliding doors opening onto the rear garden, allowing plenty of natural light. There is ample space for freestanding furniture.
The kitchen is fitted with a range of wall and base units, an integrated oven and gas hob, and space for an under-counter fridge/freezer and washing machine. A large pantry cupboard provides additional storage.
Upstairs, there are three well-proportioned bedrooms. The two larger bedrooms both feature built-in sliding wardrobes and still allow room for additional furniture, with the main bedroom overlooking the front and the second bedroom overlooking the rear garden. The third bedroom is a comfortable single and includes a built-in storage cupboard. The family bathroom is fitted with a bath and overhead shower, WC and wash hand basin. The landing also benefits from a further storage cupboard.
The rear garden is a spectacular size and enjoys a pleasant outlook with mature trees. There is plenty of space for seating and entertaining, with a patio area ideal for outdoor dining during the warmer months.












































