Property Overview
Highlands Drive
Burgess Hill ,RH15

Features
- Four-bedroom detached family home
- Quiet close, sought-after location
- Near town centre amenities
- 15-minute walk to station
- Excellent local school catchment
- Spacious living and dining rooms
- Kitchen with breakfast bar
- Utility room and study
- Driveway, garage, side access
- Mature rear garden with patio
Book A Viewing
Description
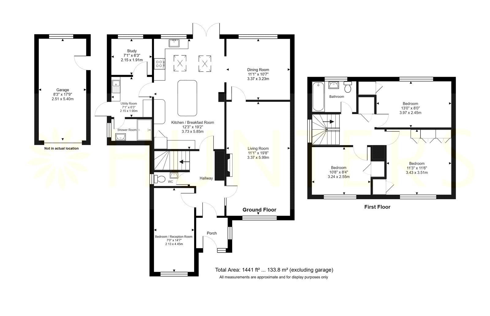
Hunters are delighted to present this spacious four-bedroom detached home, ideally located in a quiet close off Highlands Drive—one of Burgess Hill’s most desirable areas with excellent transport links, nearby amenities and sought-after schools. The property offers versatile living space including multiple reception rooms, a study, utility room and a downstairs shower room. Outside, it benefits from a large driveway, garage access and a generous north-facing rear garden with patio and lawn. Perfect for families and commuters alike.
Hunters are pleased to bring to the market this four-bedroom detached home, offering generous living space throughout and located in a quiet close off Highlands Drive, one of Burgess Hill’s most sought-after areas. The location is highly popular due to its easy access to Burgess Hill Town Centre and excellent transport links to surrounding towns and villages. Wivelsfield Train Station is just a 15-minute walk away and provides direct services to London and the South Coast, making this an ideal spot for commuters.
Local amenities are plentiful, with a large LIDL, a parade of shops with a convenience store, post office, fish and chip shop, hairdressers and barbers all within easy walking distance. The property also sits within the catchment area for several well-regarded schools including Sheddingdean Community Primary, Manor Field Primary, and St Wilfrid’s.
To the front of the property is Marle Place Recreation Ground, a lovely green space ideal for dog walking, children’s play and general outdoor activities.
The property itself benefits from a private driveway offering parking for multiple cars, along with access to the garage and a side entrance leading into the rear garden.
Upon entering, you are welcomed by a practical porch area, perfect for storing coats and shoes. From the hallway, you’ll find a versatile downstairs bedroom/reception room which offers plenty of space for freestanding furniture. To the right is the spacious living room, featuring a generous front-facing window that floods the room with light, along with a fireplace. Towards the back of the home is the dining room, enjoying views over the rear garden and leading directly into the kitchen/breakfast room. This bright, sociable space includes French doors to the garden, a breakfast bar, ample wall and base units, and integrated appliances including an oven, dishwasher and electric hob.
The utility room, accessed from the kitchen, provides additional storage, plumbing for a washing machine as well as further access to the garden. Off the utility room is a separate study, ideal for home working, and a convenient separate shower room.
Upstairs, the property offers three spacious double bedrooms, all with built-in storage cupboards and space for additional freestanding furniture. The family bathroom includes a bath, WC and wash basin. There is also a large airing cupboard on the landing.
The north-facing rear garden features a generous patio area, perfect for outdoor dining, along with a level lawn surrounded by mature shrubs and planting. The garden also includes a storage shed and an additional external storage cupboard.




























































